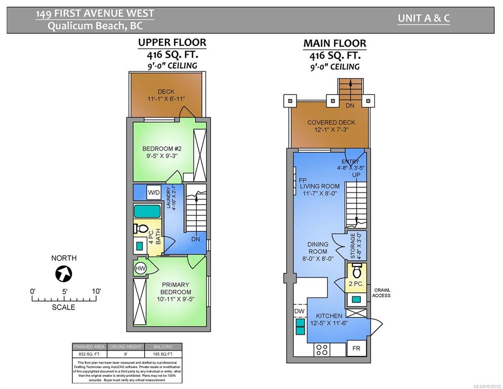
Overview
- Updated On:
- November 6, 2025
- 2 Bedrooms
- 2 Bathrooms
- 832 ft2
Description
Available Immediately. Brand new two-bedroom unit boasting 9′ ceilings and two balconies. Located in the heart of Qualicum Beach’s downtown.
Type: 4-Plex
Address: 149 First Ave W, Qualicum Beach, BC V9K 1G9
Available: Immediately
Bedrooms: 2
Bathrooms: 2
Pets: Considered (In accordance with strata bylaws)
Approximate Square Footage: 832
Appliances included: Fridge, stove, dishwasher, washer & dryer
Heating source: Heat pump with A/C, Electric fireplace and heated bathroom floors
Utilities: Base water, sewer and garbage included. BC Hydro not included.
Parking: One driveway spot
Special Amenities/Notes: Brand new
Applications required for each adult prior to viewing. Applications can be submitted by selecting the apply here link below or can be picked up at our office.
All our rentals require a one-year lease commitment.
APPLY HERE Directions Rental Notifications









